Αρχική
Πωλήσεις
1. Πλάτωνος 6 και Αθανασίου Διάκου 18, Γαλάτσι
2. Καποδιστρίου 14, Γαλάτσι
3. Πανδώρας 18, Γαλάτσι
Έργα
Υπηρεσίες
Επικοινωνία
(+30) 210 2914851
(+30) 6941606660
Πωλήσεις
Διαμερισμάτων
Αρχική
Πωλήσεις
1. Πλάτωνος 6 και Αθανασίου Διάκου 18, Γαλάτσι
2. Καποδιστρίου 14, Γαλάτσι
3. Πανδώρας 18, Γαλάτσι
Έργα
Υπηρεσίες
Επικοινωνία
(+30) 210 2914851
(+30) 6941606660
Πωλήσεις
Διαμερισμάτων
ΠΩΛΗΣΕΙΣ ΔΙΑΜΕΡΙΣΜΑΤΩΝ
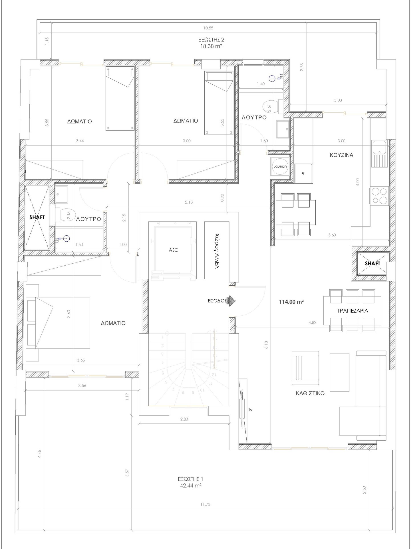
Καποδιστρίου 14, Γαλάτσι
Οροφοδιαμέρισμα ΣΤ (6ου ορόφου)
Κάντε κλικ πάνω στην κάτοψη για μεγέθυνση
Κάντε κλικ πάνω στις εικόνες για μεγέθυνση
Πρόκειται για διαμπερές οροφοδιαμέρισμα 6ου ορόφου, επιφάνειας 114.00 τ.μ.
Διαμπερές οροφοδιαμέρισμα με μεγάλες βεράντες από γυαλί
3 Υπνοδωμάτια
Αποθήκη υπογείου με αυτόνομο ρεύμα
Θέση σταύθμευσης υπογείου
2 Λουτρά
Εντοιχισμένα είδη υγιεινής
Θεμελίωση γενικής κοιτόστρωσης (ραντιέ)
Αντισεισμική κατασκευή (ποιότητα σκυροδέματος C30/37)
Ενεργειακή Κλάση Α
Αυτόνομες ατομικές Μονάδες Φυσικού Αερίου
Σύστημα εξωτερικής θερμομόνωσης (Θερμοπρόσοψη) 10cm
Θερμοδυναμικά - Θερμοδιακοπτόμενα ενεργειακά κουφώματα αλουμινίου με ηλεκτρικά ρολά και σίτες
Μηχανικός - Ηλεκτροκίνητος ανελκυστήρας (MRL) σύγχρονης τεχνολογίας τύπου inverter
Προεγκατάσταση συστήματος συναγερμού
Φωτισμός νέας τεχνολογίας LED
Σύγχρονος Ηλεκτρικός Εξοπλισμός (data, TV sat, utp cat6) και υποδομή οπτικής ίνας
Πόρτες ασφαλείας διπλής θωράκισης
Σύγχρονο σύστημα θυροτηλεόρασης με κωδικό
Κάντε εγγραφή στο Newsletter μας για να μαθαίνετε πρώτοι τα νέα μας
.
Έχω διαβάσει και αποδέχομαι την
Ειδοποίηση Προστασίας Προσωπικών Δεδομένων
Λεωφ. Βεΐκου 26 & Αφαίας 1
111 47 - Γαλάτσι, Ελλάδα
(+30) 210 2914851
(+30) 6941606660
Αυτή η διεύθυνση ηλεκτρονικού ταχυδρομείου προστατεύεται από τους αυτοματισμούς αποστολέων ανεπιθύμητων μηνυμάτων. Χρειάζεται να ενεργοποιήσετε τη JavaScript για να μπορέσετε να τη δείτε.
Instagram
Copyright © 2019
Τούντας Κατασκευαστική
All Rights Reserved
Created by
Αυτή η διεύθυνση ηλεκτρονικού ταχυδρομείου προστατεύεται από τους αυτοματισμούς αποστολέων ανεπιθύμητων μηνυμάτων. Χρειάζεται να ενεργοποιήσετε τη JavaScript για να μπορέσετε να τη δείτε.